53945 Blankenheim, Büro/Praxis zum Kauf
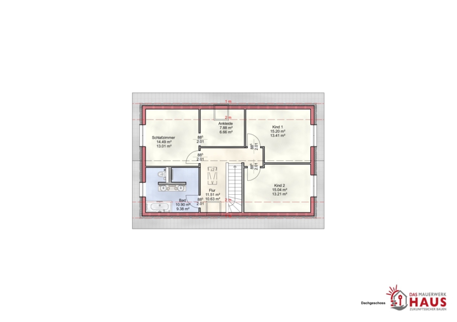
Das Einfamilienhaus gleicht einem perfekt durchdachten Raumwunder. Auf zwei Geschossen erstreckt sich das Haus auf 140 m². Im Erdgeschoss befinden sich ein Gäste-WC, der Hauswirtschaftsraum, Büro und der großzügige Wohn-/ Essbereich mit angrenzender Küche, der durch bodentiefe Fensterelemente wunderbar erhellt wird. Über die gut angeordnete Diele lassen sich alle Räume im Erdgeschoss perfekt erreichen. Über eine gewendelte Vollholztreppe erreicht man das 75 m² große Dachgeschoss. Hier bekommt jedes Familienmitglied seinen eigenen Rückzugsort. Zwei Kinderzimmer, ein geräumiges Elternschlafzimmer mit angrenzender Ankleide und ein großes Familienbad bilden das geräumige Dachgeschoss. Dieses Haus wird nach Ihren individuellen Wünschen geplant und ausgestattet! In dem Gesamtpreis ist das Grundstück in Höhe von € 100.000,- Für das Grundstück fällt eine Maklerprovision in Höhe von 3.570,00 € 5 Zimmer, Küche, Diele, Bad, Gäste-WC, Ankleide, Flur, Hauswirtschaftsraum Das gezeigte Traumhaus im Überblick: + Schlüsselfertiges Massivhaus im Sinne der Ausstattungsbeschreibung BLB 10-2024 Beste Markenausstattung in jedem Mauerwerkhaus: + Zimmermannsmäßiger Dachstuhl aus Konstruktionsvollholz Folgende Kosten sind im Preis nicht enthalten: Das Objekt wird durch unseren Kooperationspartner der Firma Mauerwerkhaus GmbH und Co.KG erstellt. Weitere Informationen erhalten Sie in diesem Büro! Blankenheim ist eine Gemeinde im nordrhein-westfälischen Kreis Euskirchen, im Westen Deutschlands. Die Gemeinde liegt am südwestlichen Rand des Naturparks Nordeifel, etwa 30 Kilometer südwestlich von Bonn und etwa 20 Kilometer nordwestlich von Aachen. Blankenheim erstreckt sich über eine hügelige Landschaft, die von Wäldern, Wiesen und landwirtschaftlich genutzten Flächen geprägt ist. Die Ortschaft Blankenheim selbst liegt malerisch an den Ufern des Flüsschens Ahr, das durch den Ort fließt. Die Gemeinde grenzt im Norden an die Stadt Bad Münstereifel, im Osten an die Gemeinde Weilerswist und im Süden an die Stadt Euskirchen. Die Region hat sowohl landwirtschaftliche als auch touristische Bedeutung, vor allem durch ihre Nähe zum Naturpark und das Ahrtal, das für Wanderer und Naturliebhaber von Interesse ist. Das Grundstück liegt am Ende einer Sackgasse. Blankenheim ist gut über die A1 und A61 erreichbar und bietet durch diese Verkehrsanbindungen eine gute Anbindung an größere Städte wie Köln, Bonn und Aachen. In der Umgebung finden sich zahlreiche Sehenswürdigkeiten, wie etwa das Blankenheimer Schloss und die historischen Kirchen der Region. Der Ort hat eine gute Infrastruktur mit Geschäften, Restaurants und Freizeitmöglichkeiten.




Objektdaten
53945 BlankenheimEnergieausweis
Ausstattung / Merkmale
Objektbeschreibung
Beschreibung
bereits eingerechnet.
an.Ausstattung
+ Zukunftsorientierte Energieausstattung in Form einer Luft-Wasser-Wärmepumpe (Firma Vaillant) und Fußbodenheizung sowie einer kontrollierten Wohnraumlüftung mit Wärmerückgewinnung.
+ Inklusive Erdarbeiten und Bodenplatte
+ Dacheindeckung mit Betondachsteinen von Braas.
+ Hochwertiger Kunstharz-Außenputz für eine langlebige Fassade
+ Vollständige Badausstattung von Villeroy & Boch mit Badewanne und flacher Duschwanne
+ Gäste-WC und Badezimmer komplett gefliest.
+ Haustür mit 5-fach-Sicherheitsverriegelung
+ Erstklassige Innentüren der Marke Herholz oder Prüm mit Edelstahldrückern
+ Fenster mit 3-Scheiben-Wärmeschutzverglasung und elektrische Rollläden
+ Stein-Innenfensterbänke
+ Austrittsschwellen an bodengleichen Außentüren aus Granit
+ Vollholztreppe
+ Vollständige und überdurchschnittliche Elektroausstattung inklusive Klingelanlage und Multimedia-Verkabelung
+ Rauchmelder für Ihre Sicherheit
+ Alle Leistungen aus einer Hand
+ Alle Planungs- und Architektenleistungen
+ Einsatz regionaler Handwerksbetriebe
+ Baubegleitende 5-Phasen-TÜV-Prüfung und Blower-Door-Test
+ Individuelle Anpassung auf Ihre Bedürfnisse
+ Auf Wunsch mit Keller erhältlich
+ Auf Wunsch mit weiteren Energietechniken erhältlich
1. Die Maler- und Tapezierarbeiten und Bodenbeläge (außer im
Bad und Gäste-WC).
2. Baunebenkosten sind wie Hausanschlüsse, Außenanlage,
Entwässerung etc.
3. Grundstücksnebenkosten wie Grunderwerbssteuer,
Maklerprovision (Grundstück) und Notarkosten.Sonstige Informationen
Kontaktdaten

Lage
Immobilie empfehlen