Zwischen Natur und Zuhause – Wohnen mit besonderem Flair in ruhiger Grünlage

41238 Mönchengladbach, Doppelhaushälfte zum Kauf

Kontaktdaten

Christian Weeger, DiMA Immobiliencenter GmbH

Objektdaten

  • Objekt-ID
    5981
  • Objekttypen
    Doppelhaushälfte, Haus
  • Adresse
    41238 Mönchengladbach
    (Giesenkirchen)
  • Etagen im Haus
    1
  • Wohnfläche ca.
    112 m²
  • Grund­stück ca.
    246 m²
  • Zimmer
    3
  • Badezimmer
    1
  • Separate WC
    1
  • Terrassen
    1
  • Heizungsart
    Zentralheizung
  • Wesentlicher Energieträger
    Gas
  • Baujahr
    1997
  • Ausstattung
    Standard
  • Käufer­provision
    3,57 % inkl. MwSt vom beurkundeten Kaufpreis
  • Kaufpreis
    375.000 EUR

Ausstattung / Merkmale

  • ✓ Badewanne
  • ✓ Dusche
  • ✓ Garage
  • ✓ Keller
  • ✓ Separates WC
  • ✓ Tageslichtbad
  • ✓ Terrasse

Energieausweis

  • Energieausweistyp
    Verbrauchs­ausweis
  • Gültig bis
    16.12.2026
  • Gebäudeart
    Wohngebäude
  • Baujahr lt. Energieausweis
    1997
  • Primärenergieträger
    Erdgas leicht
  • Endenergie­verbrauch
    82,70 kWh/(m²·a)
  • Energie­effizienz­klasse
    C
0 25 50 75 100 125 150 175 200 225 250+ H G F E D C B A A+ H G F E D C B A A+ Endenergieverbrauch 82,70 kWh/(m²·a)

Objekt­beschreibung

Beschreibung

Willkommen in einem Zuhause, das vom ersten Moment an ein Gefühl von Geborgenheit vermittelt. Diese charmante Doppelhaushälfte aus ca. 1997 verbindet ein ruhiges Wohnumfeld mit einer durchdachten Raumaufteilung und einem äußerst gepflegten Gesamtbild – ein Ort, an dem man ankommt und bleiben möchte.

Schon beim Betreten spürt man die angenehme Wohnatmosphäre. Der helle Wohn- und Essbereich bildet das Herzstück des Hauses und öffnet sich über großzügige Fensterelemente zur Terrasse und in den liebevoll angelegten Garten. So entsteht ein fließender Übergang zwischen Innen- und Außenbereich – ideal für entspannte Nachmittage, gesellige Abende oder einfach, um den Alltag hinter sich zu lassen.

Die Räume sind gut proportioniert, freundlich und vielseitig nutzbar. Im Obergeschoss erwarten Sie ein großzügiges Schlafzimmer sowie ein weiteres Zimmer, das sich flexibel als Kinder-, Gäste- oder Arbeitszimmer nutzen lässt. In der ursprünglichen Planung des Hauses waren zwei Kinderzimmer vorgesehen. Durch eine räumliche Umgestaltung lässt sich das große Zimmer somit wieder in zwei separate Kinderzimmer aufteilen.

Das Tageslichtbad mit Dusche und Badewanne bietet angenehmen Komfort im Alltag und lädt zugleich zum Abschalten ein.

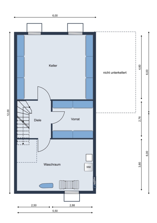
Der voll unterkellerte Bereich schafft zusätzliche Stau- und Nutzflächen und sorgt für Ordnung im Haus. Die überlange Garage mit praktischem Wasseranschluss ergänzt das Angebot und rundet dieses attraktive Zuhause stimmig ab. Von hier kommt man über eine Schiebetür direkt in den Garten/Terrasse.

Ausstattung

  • ca. 112 m² Wohnfläche
  • ca. 246 m² Grundstück
  • Tageslichtbad mit Dusche und Badewanne
  • separates Gäste-WC
  • Kunststofffenster mit Rollläden
  • Gas-Zentralheizung aus 2024
  • voll unterkellert
  • Terrasse und gepflegter Garten
  • Garage
  • Baujahr ca. 1997
  • Energieeffizienzklasse C

Sonstiges

Sie möchten Ihre Immobilie verkaufen?
Erfahren Sie über uns den Marktwert Ihrer Immobilie. Unser Service ist für Sie völlig unverbindlich und kostenfrei!

Alle Experten in einem Haus
Das DiMA Immobiliencenter vereint Experten der gesamten Immobilienbranche in einem Haus.
Mehr erfahren Sie unter: http://www.dima-immobiliencenter.de

Haftungsausschluss
Alle Angaben beruhen auf Informationen der Eigentümer. Hierfür kann trotz sorgfältiger Prüfung unsererseits keine Gewähr und Haftung für die Richtigkeit und Vollständigkeit übernommen werden.

Lage

Die Lage dieser Immobilie ist ein echtes Highlight. Direkt angrenzend an weitläufige Grünflächen und eingebettet in eine ruhige, gewachsene Umgebung genießen Sie hier eine Wohnqualität, die man nur selten findet. Der Blick ins Grüne, die unmittelbare Nähe zu Feldern und Spazierwegen sowie die angenehme Ruhe schaffen eine Atmosphäre, die jeden Tag ein Stück entschleunigt.

Ob morgendliche Spaziergänge, eine kurze Auszeit an der frischen Luft oder entspannte Stunden im Freien – die Natur beginnt hier praktisch vor der Haustür. Gleichzeitig profitieren Sie von einer guten Erreichbarkeit aller Einrichtungen des täglichen Bedarfs sowie einer soliden Anbindung an das Mönchengladbacher Stadtgebiet.

Diese Lage verbindet auf besondere Weise naturnahes Wohnen mit urbaner Erreichbarkeit – ideal für alle, die Ruhe schätzen, ohne auf Komfort verzichten zu wollen.

Die dargestellte Position der Immobilie ist nur eine ungefähre Angabe.

Direktanfrage

* Pflichtangaben
 SSL-verschlüsselt
Immobiliendaten-Import und Darstellung für WordPress: WP-ImmoMakler