41068 Mönchengladbach, Mehrfamilienhaus zum Kauf
Zum Verkauf steht ein gepflegtes und voll vermietetes 8-Familienhaus in guter Wohnlage – ergänzt durch ein sofort bebaubares Grundstück mit bereits erteilter Baugenehmigung für den Bau eines weiteren Mehrfamilienhauses. Dieses Ensemble bietet eine seltene Kombination aus laufenden Mieteinnahmen und sofortigem Entwicklungspotenzial. Highlights auf einen Blick Es besteht noch eine Mietpreisbindung bis 2032. Ein Angebot eines renommierten Massivhausunternehmens für die Erstellung des 7 Familienhauses liegt bereits vor. Das Angebot, die Pläne und die Baugenehmigung können bei uns im Büro eingesehen werden. Fazit Die Wohnungen werden über eine Gaszentralheizung beheizt, die für eine effiziente und gleichmäßige Wärmeversorgung sorgt. Das Haus macht einen gepflegten Eindruck. •Energieausweis liegt vor / wird zur Besichtigung bereitgestellt Sie interessieren sich für dieses Angebot? Dann kontaktieren Sie uns doch einfach für einen Besichtigungstermin bzw. für weitere Informationen. Alle Angaben beruhen auf Informationen der Eigentümer. Hierfür kann trotz sorgfältiger Prüfung unsererseits keine Gewähr und Haftung für die Richtigkeit und Vollständigkeit übernommen werden. WIR KAUFEN IHRE IMMOBILIE Zwischen Venn und der Innenstadt befindet sich diese Immobilie in zentraler Lage. Einkaufsmöglichkeiten, Metzger, Ärzte und Apotheken sind direkt vor Ort und größtenteils fußläufig erreichbar. Schulen und Kindergärten befinden sich ebenfalls zum Teil in fußläufiger Nähe. Die Mönchengladbacher Innenstadt ist 2,5 km entfernt; die bekannte Hindenburgstraße mit Modeboutiquen sowie dem Minto laden Sie zum Shoppen und Verweilen ein. Auch für Freizeit und Unterhaltung ist gesorgt. Kinos, Sportplätze, eine Bowling-Lounge und weitere Freizeitmöglichkeiten befinden sich in unmittelbarer Nähe. Des Weiteren zeichnet sich die Lage durch einen hervorragenden ÖPNV und unmittelbare Autobahnanbindungen aus.




Objektdaten
41068 MönchengladbachEnergieausweis
Objektbeschreibung
Beschreibung
Ein ideales Investment für Kapitalanleger, Projektentwickler oder Bauträger, die auf der Suche nach einer renditestarken Immobilie mit Erweiterungspotenzial sind.
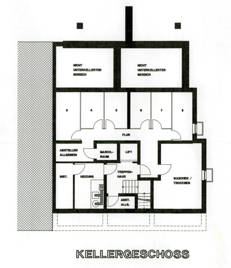
• 8 Wohneinheiten, langfristig vermietet
•Gepflegter Zustand, solide Bauweise
•Gesamtwohnfläche Bestandsgebäude: ca. 507 m²
•Grundstücksfläche gesamt: ca. 1656 m²
•Nettokaltmiete p.a.: ca. 32.261 €
•Baugenehmigung liegt vor – für den Neubau eines 7-Familienhauses
Geplante Neubaufläche: ca. 450 m² Wohnfläche / 7 Wohneinheiten
•Erschließung vollständig vorhanden
•Attraktive Mikrolage mit guter Anbindung und Infrastruktur
Dieses Angebot vereint laufende Mieteinnahmen mit attraktivem Entwicklungspotenzial. Das bestehende 8-Familienhaus bietet sofortige Erträge, während das zusätzliche Baugrundstück die Möglichkeit zur Schaffung weiteren Wohnraums eröffnet. Eine seltene Gelegenheit für Investoren, die Bestand und Neubau strategisch kombinieren möchten.Ausstattung
Sonstige Informationen
•Stellplätze/Garagen vorhanden bzw. geplant
•Grundrisse, Baubeschreibung, Genehmigungsunterlagen auf Anfrage erhältlich
•Voll vermietet – stabile Mietverhältnisse
•Geringer Verwaltungsaufwand
Sie besitzen selbst eine Immobilie und möchten diese verkaufen?
Melden Sie sich bei uns!
info@dima-immobiliencenter.de
www.dima-immobiliencenter.deKontaktdaten

Lage
Immobilie empfehlen